首页 > 图纸库 > 机械图纸 > 电子/电气/电力
上传奖励 + 70%下载收益

某科技大楼成套配电箱动力柜深化图箱体图

发布时间:2026-01-13
图纸描述

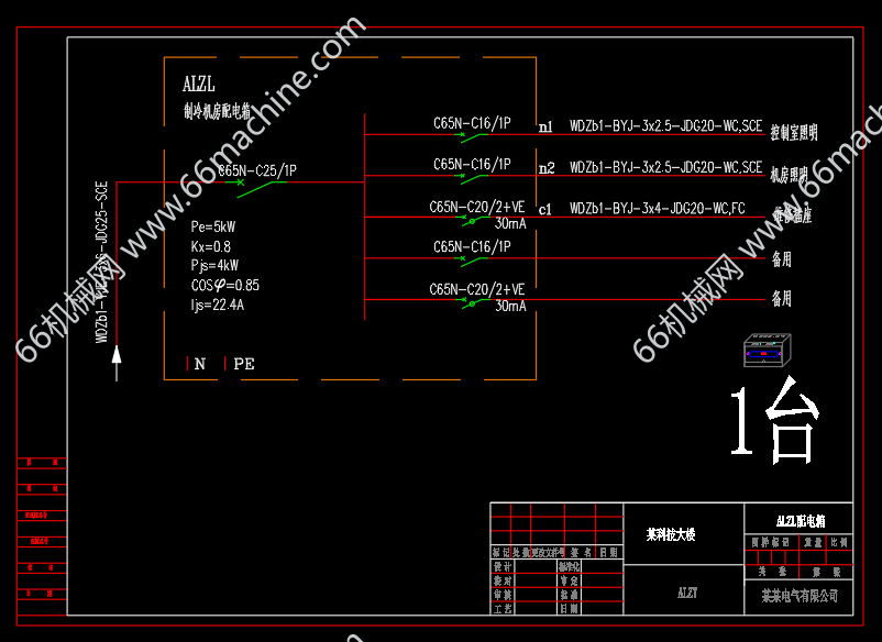
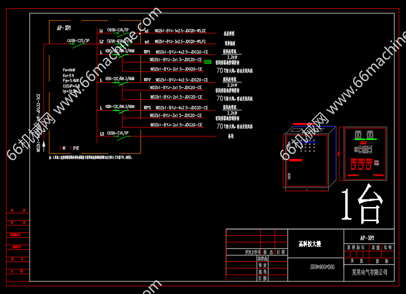
本套图纸是某科技大楼-成套配电箱动力柜深化图箱体图,共104台。该项目使用的是施耐德开关。根据客户的原图纸,按对应的开关品牌排布,设计出配电箱箱体图,供钣金厂生产箱子用。图纸包含动力柜、基业箱、风机控制箱、电表箱、双电源箱等等。还有对应开关的模型图章,供下载参考学习使用。

    从事非标设计多年,上传资料可供大家参考!
    获推荐作品 271
    图纸参数

    图纸ID: 315092070400398519

    图纸格式:dwg

    图纸版本:AutoCAD2007

    文件大小:3.81MB

    所需积分:20机械币

    可否编辑: 可进行编辑,包含特征参数

    关注人数:0

    热门标签
    换一批

    • 热门图纸
    • 推荐图纸
    作者的其它图纸 查看更多>>
    某科技大楼成套配电箱动力柜深化图箱体图 (图纸大小:3.81M