首页 > 图纸库 > 机械图纸
上传奖励 + 70%下载收益

自卸式垃圾车副车架设计详图

发布时间:2025-09-30
图纸描述

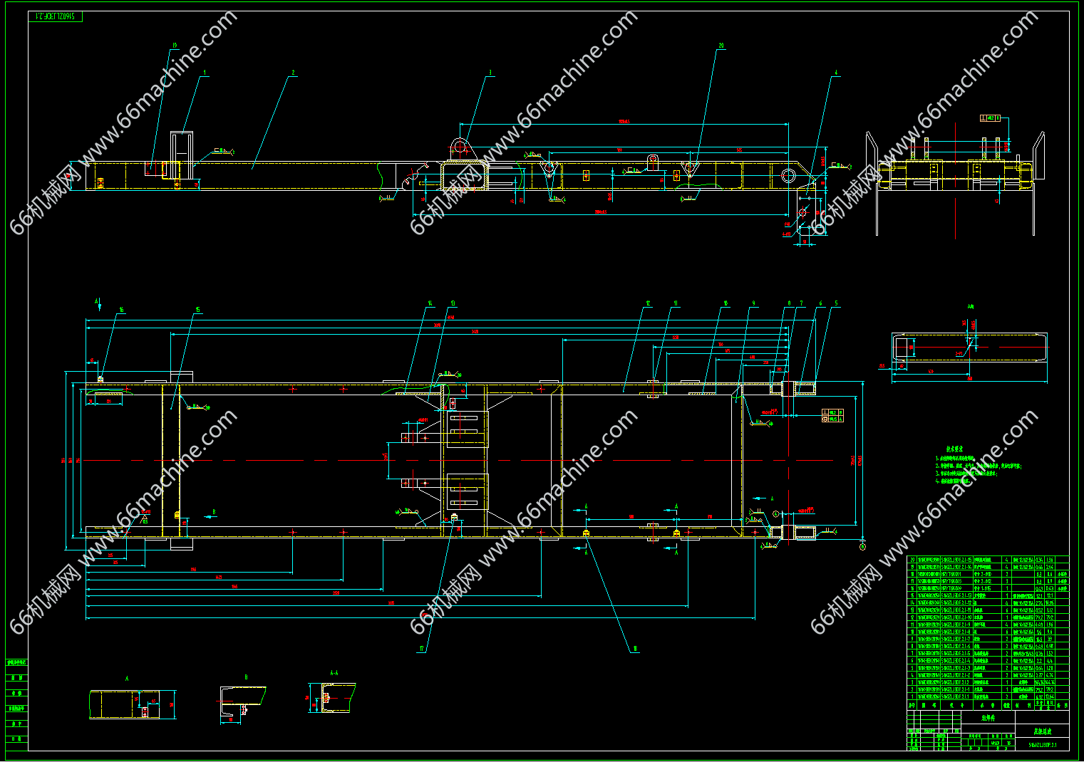
本图纸为5160ZLJ3DF自卸式垃圾车的副车架,由纵梁、横梁组焊成牢固结构,还配有三脚架、左右拉杆等部件。它承担垃圾厢的重量,将载荷分散到底盘,自卸时能传递力,让车厢平稳倾翻卸料,同时强化底盘与上装的连接,保障作业稳定可靠。

    从事机械制图
    获推荐作品 136
    图纸参数

    图纸ID: 315092070404592675

    图纸格式:dwg、DWG

    图纸版本:AutoCAD2010

    文件大小:2.48MB

    所需积分:25机械币

    可否编辑: 可进行编辑,包含特征参数

    关注人数:0

    热门标签
    换一批

    • 热门图纸
    • 推荐图纸
    作者的其它图纸 查看更多>>
    自卸式垃圾车副车架设计详图 (图纸大小:2.48M