首页 > 图纸库 > 机械图纸
上传奖励 + 70%下载收益

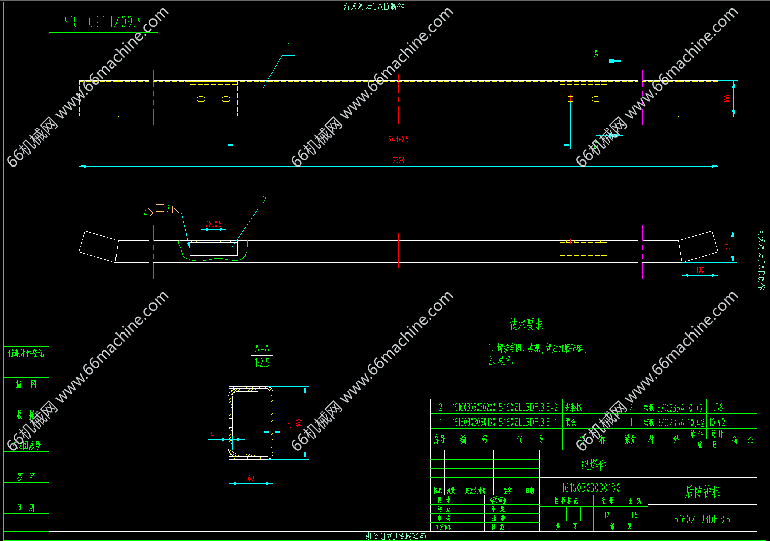
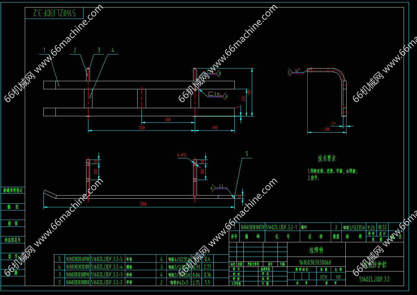
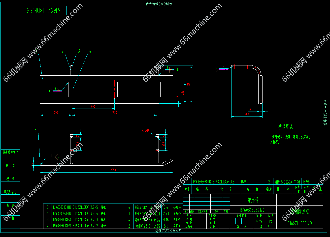
5160ZLJ3DF自卸式垃圾车防护栏详图

发布时间:2025-09-30
图纸描述

本图纸为5160ZLJ3DF自卸式垃圾车防护栏,由挡泥板、压板等组成。挡泥罩钻有调节板连接孔和固定孔,可调整高度;压板配孔,保证安装后挡泥板上企业标志朝后。车辆行驶时,它能阻挡车轮溅起的泥水、杂物,保持车身清洁,且安装牢固、装配美观,为行车安全助力。

    从事机械制图
    获推荐作品 136
    图纸参数

    图纸ID: 315092070400397426

    图纸格式:dwg

    图纸版本:AutoCAD2010

    文件大小:1.90MB

    所需积分:25机械币

    可否编辑: 可进行编辑,包含特征参数

    关注人数:0

    热门标签
    换一批

    • 热门图纸
    • 推荐图纸
    作者的其它图纸 查看更多>>
    5160ZLJ3DF自卸式垃圾车防护栏详图 (图纸大小:1.90M