首页 > 图纸库 > 机械图纸 > 锅炉/压力容器
上传奖励 + 70%下载收益

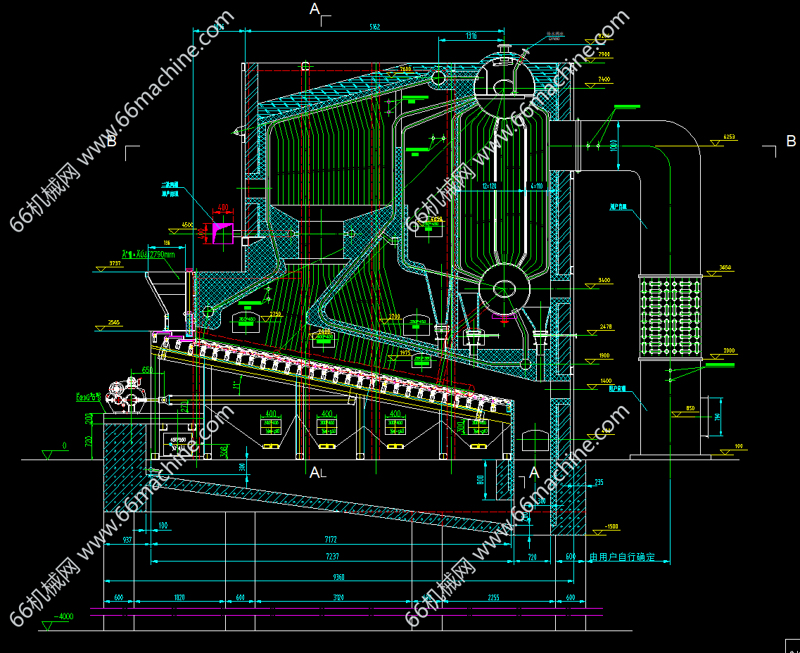
SHW10-1.25-H新型锅炉详图

发布时间:2025-11-07
图纸描述

锅炉是一种可同时使用燃油和燃气的双燃料锅炉,源于欧洲国家在双燃料燃烧器技术上的突破。早期因缺乏双燃料燃烧器技术,锅炉只能单独使用燃油或燃气,随着燃烧器与锅炉系统的有机整合,该新型锅炉品种正式形成。

    从事非标设计
    获推荐作品 137
    图纸参数

    图纸ID: 315092070396204335

    图纸格式:dwg

    图纸版本:AutoCAD2007

    文件大小:1.73MB

    所需积分:5机械币

    可否编辑: 可进行编辑,包含特征参数

    关注人数:0

    热门标签
    换一批

    • 热门图纸
    • 推荐图纸
    作者的其它图纸 查看更多>>
    SHW10-1.25-H新型锅炉详图 (图纸大小:1.73M