首页 > 图纸库 > 机械图纸 > 电子/电气/电力
上传奖励 + 70%下载收益

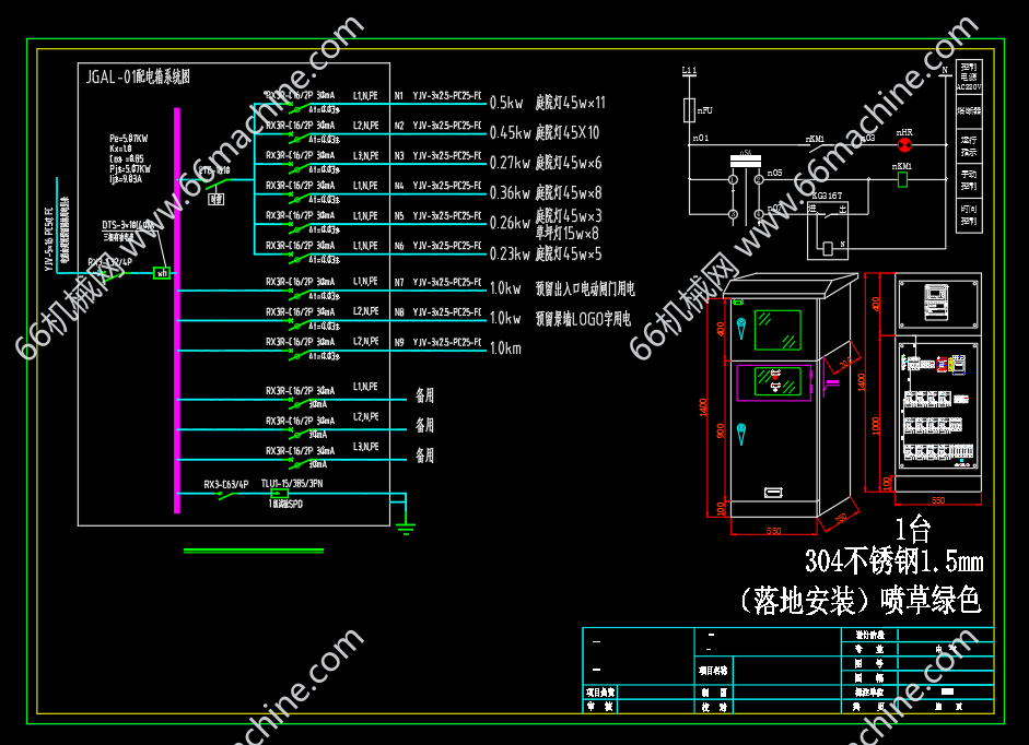
某综合楼配电箱动力柜成套电气图(含控制系统)

发布时间:2026-01-29
图纸描述

本套图纸为某综合楼配电箱动力柜成套电气图(含控制系统),根据客户的原图纸,按对应的开关品牌排布,设计出配电箱箱体图,供钣金厂生产箱子用。图纸包含多用户电表箱、户外箱、动力柜、基业箱、风机控制箱、双电源箱、水泵控制箱、T接箱等等。原理图包括星三角启动原理图、单速风机控制原理图、双速风机控制原理图、水泵控制原理图等,仅供大家参考!

    从事机械设计多年!
    获推荐作品 177
    图纸参数

    图纸ID: 315092070400399432

    图纸格式:dwg

    图纸版本:AutoCAD2007

    文件大小:2.53MB

    所需积分:20机械币

    可否编辑: 可进行编辑,包含特征参数

    关注人数:0

    热门标签
    换一批

    • 热门图纸
    • 推荐图纸
    作者的其它图纸 查看更多>>
    某综合楼配电箱动力柜成套电气图(含控制系统) (图纸大小:2.53M